back to
>
Roth / TORO
>
Hand operated
>
Snowthrower
>
Two stage
>
1132
>
610/38160
>
9000001
>
Grader Blade Assy. (Model No. 59051)
Spare Parts Lists for Toro Roth / TORO Grader Blade Assy. (Model No. 59051)
pos.
decription
spare part number
20-5210
pos.
decription
spare part number
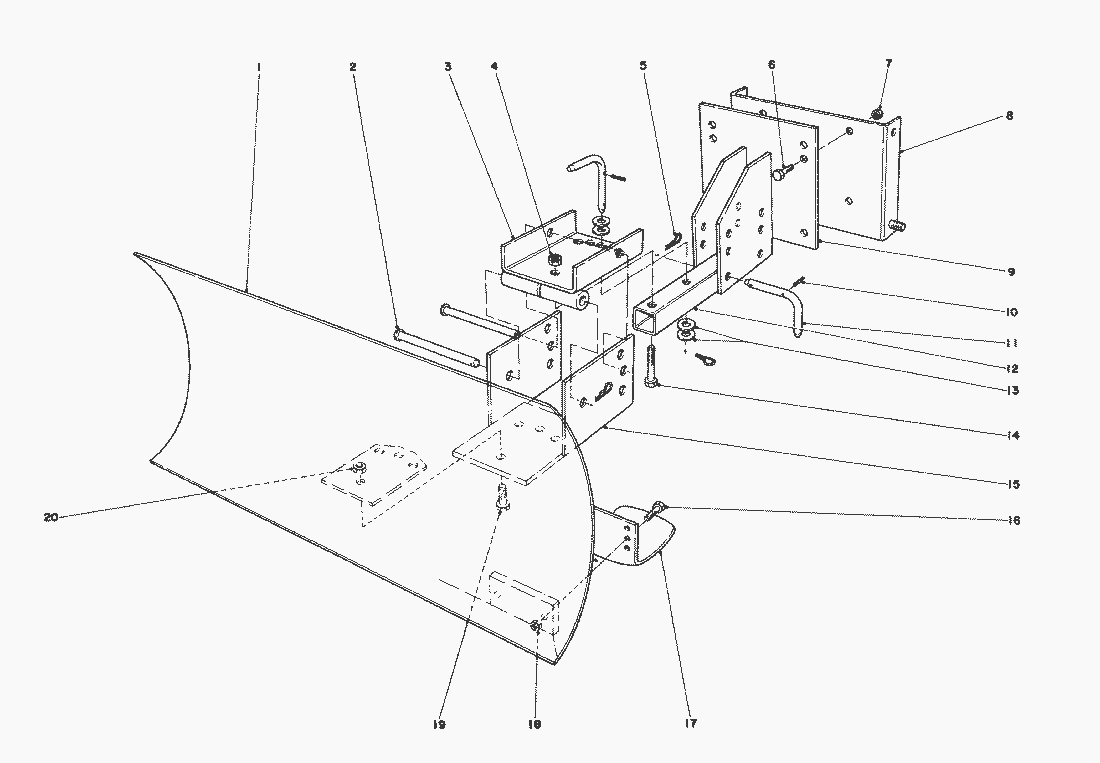
1
Blade
7-4374
2
Pin
283-38
3
Swivel Bracket
20-5090
4
Locknut
32152-3
5
Hair Pin Cotter
3290-322
6
Capscrew
323-6
7
Locknut
32152-2
8
Mounting Plate Bracket (used with 826 and 1032 only)
22-4920
9
Mounting Plate
20-5170
10
Roll Pin
32121-45
12
Blade Tongue
20-5140
13
Flat Washer
3256-5
14
Capscrew
325-11
15
Blade Adjustment Plate
20-5130
16
Capscrew
322-6
17
Skid
7-1023
18
Locknut
32152-1
19
Capscrew
325-5
20
Locknut
32152-3
Air Cleaner Kit (B & S)
20-9960
Lists
Toro
Roth / TORO
Ride-On Mowers
Hand operated
Sweeper
Snowthrower
Attachements
Two stage
1332 PowerShift
1232 PowerShift
1132 PowerShift
1132
610/38160
9000001
Grader Blade Assy. (Model No. 59051)
Chute Extension Kit 26-1100
Snow Cab Assy. (Model No. 12-8100)
12 Volt Start Engine Kit 37-4640
Engine B&S Model No. 252416 TYPE 0141-01 (Cont.)
Engine B&S Model No. 252416 TYPE 0141-01
Engine B&S Model No. 252416 TYPE No. 0141-01
Starter Engine Kit Model No. 37-4630
Handle Assy. (Cont.)
Handle Assy.
Engine Assy.
Wheel Assy.
Traction Assy. (Cont.)
Traction Assy.
Auger Assy. (Cont.)
Auger Assy.
7000001
6000001
5000001
4000001
3000001
2000001
1000001
0000001
1028 PowerShift
924 PowerShift
828 PowerShift
824 PowerShift
824 XL
824
724
624 PowerShift
622
521
3521
Single stage
Vac/Blower
Lawnmower
Robin
Terms and Conditions
(C) by motoruf